重庆风水大师李九燚两江新区中央公园汀澜雅墅别墅风水堪舆案例
2026年4月,重庆风水大师李九燚应邀前往了两江新区中央公园汀澜雅墅某别墅住宅进行了家居风水堪舆。李九燚首先观察了住宅周围自然(山势、水流)和人文(建筑、道路)环境;接着逐一分析了住宅朝向、空间格局(车库、影音室、入户玄关、客厅、厨房、茶室、卧室、屋顶花园、娱乐室、储物间、入户花园等)、装修布局等;并结合福主命理与流年运势综合研判。最后为福主提供了一份全面详尽的调理方案,在福主打造趋福避煞、和谐安定的家居环境中发挥了至关重要的作用。

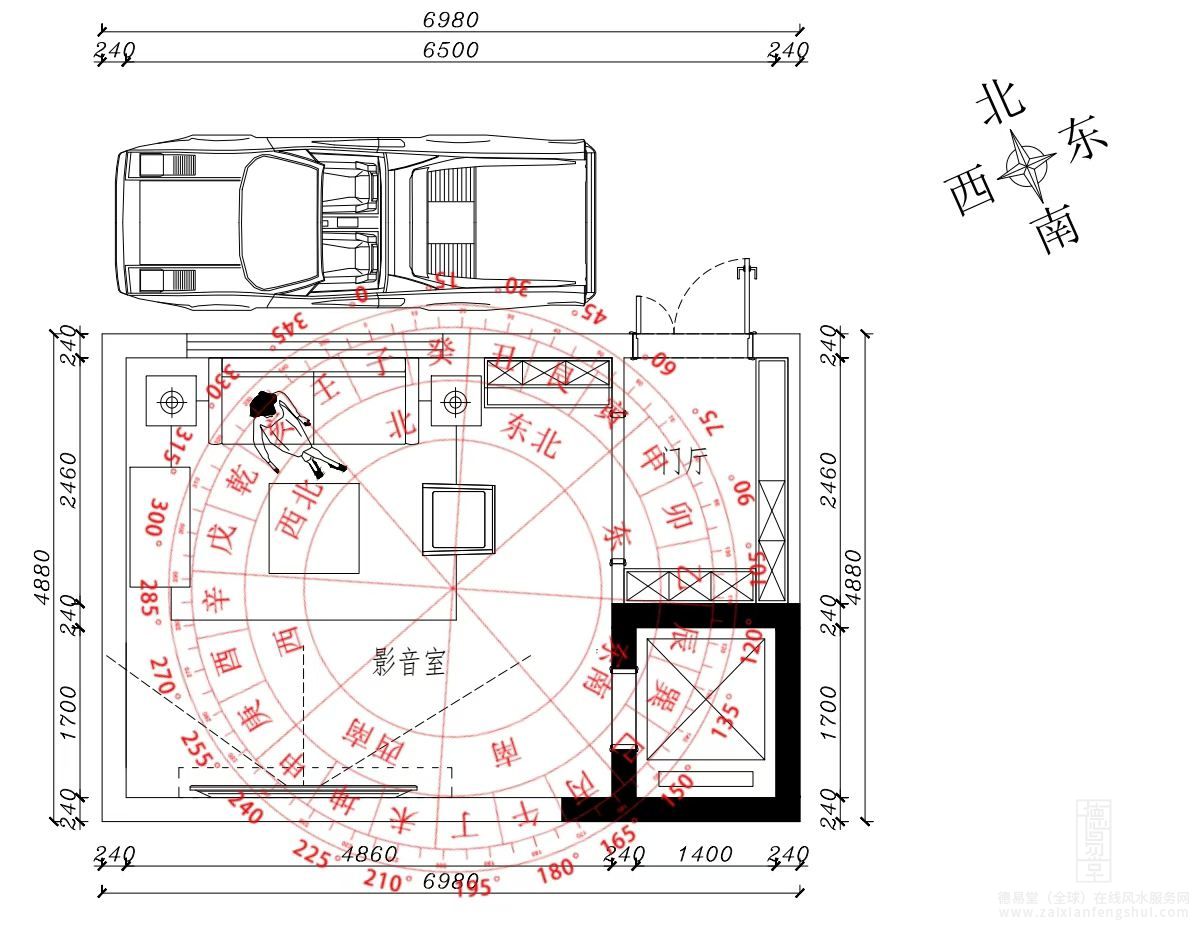
住宅户型结构图

住宅户型结构图

住宅户型结构图

住宅户型结构图

住宅户型结构图

住宅户型结构图

李九燚在进行现场堪舆

住宅周围环境

住宅周围环境
师承有道,方能致远。李九燚(yì)大师广纳贤才,传道授业,开设入室、传统、嫡传三级弟子体系,由浅入深,解析全球案例,在实战中感悟易学之博大精深。


